Home
Products
Contact
Catalogue
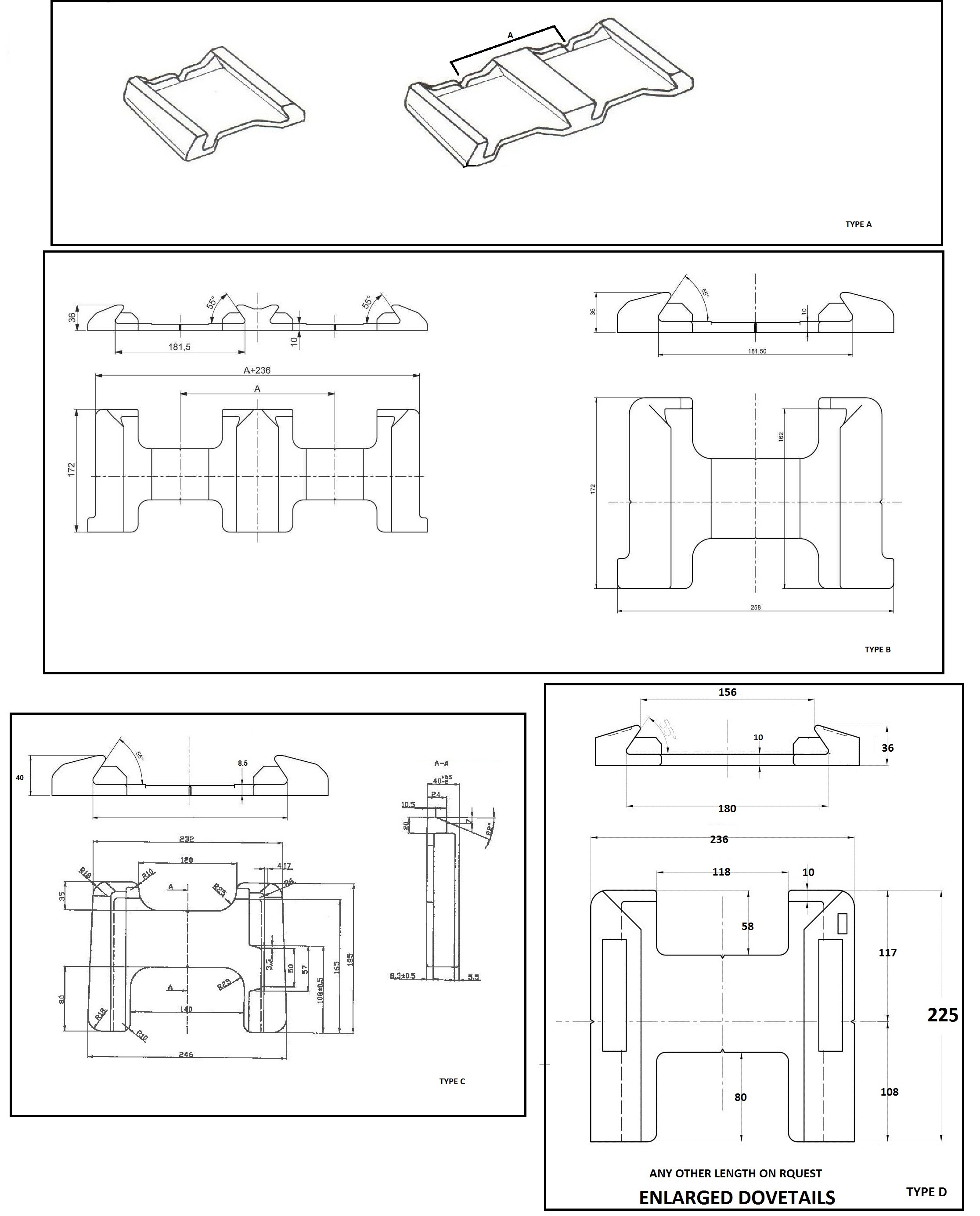
DOVETAIL PLATE
DRAWING
IMAGE
Specification
STRENGTH
MBL
SWL
TENSILE
500kN
250kN
SHEAR
420kN
210kN
COMPRESSION
NA
NA
Our Products
© 2019 MSA lashing. All rights reserved | Design by
Buraq Infotech
Top